Jó hely, Jó ház, Jó lehetőség
- 129.000.000 Ft
- 129.000.000 Ft
Összefoglaló
- Ház
- 1
- 1
- 100 m²
- 697 m²
- 2018
Leírás
Eladó kiváló állapotú, egyszintes, 100 m2-es ház
Almádi északi városrészében, Vörösberényben
Almádi egyik kedvenc balatoni városom. Laktam itt, éltem itt egy évet, legszebb éveim között tartom számon. Mindig öröm Almádiba visszajönnöm, és ahogy egy korábbi alkalommal írtam is: “Budapestről visszafelé jövet este, ha csak tehetem, a 71-es úton, a parton jövök. Az egész napi rohanás, fáradság és az éjszakai vezetés kárpótlásaként tárulnak elém Fűzfőt elhagyva az Öreg-hegynek a tóra leereszkedő lejtőjén, mint apró szentjánosbogarak, Almádi fényei. Mutatják az utat és jelzik, megérkeztem. A Balatonon vagyok. Eltéveszthetetlen látvány, eltéveszthetetlen élmény. Almádi, kedvellek!” Most ismét itt vagyok Almádi, hálás vagyok, hogy itt lehetek.
Megközelítés
Balatonalmádi város belterületén vagyok és természetesen erre mindenfelé és útban ide is végig jó minőségű aszfaltozott utakon érkezem. Itt a városi élet minden kényelme adott. A postás kijár, közvilágítás van, a szemetet elszállítják, és ha leesik a hó, az utat takarítják.
Környék
Török Bálint utca 4. Az itteniek a városnak ezt a részét szívesen nevezik inkább Vörösberénynek, hiszen ez a terület már az 1550-es évektől ismert és lakott település volt, akkoriban még Szárberény, később Vörösberény néven. Önálló község státusza 1971-ben Balatonalmádihoz csatolásával szűnt meg, azóta Almádi északi városrésze. Önállósága azonban sok vonatkozásban megmaradt.
Pár száz méterre innét található az 1500-as években épült református templom, tőle nem messze a Loyolai Szent Ignác templom, a szakorvosi rendelő, a SPAR, a Vörösberényi általános iskola, a Coop, közel van a Palánta bölcsőde és a Magocskák óvoda, és még sok minden ami a mindennapi élethez fontos. És ha ez nem elég, még gyalog is vagy kerékpárral gyorsan elérhető Almádi megújult bevásárló központjában az Aldi, Rossmann, Pepco, Sportközpont, stb. Aki pedig a természetbe vágyik, a közeli erdőben tehet lelket és elmét pihentető sétákat, kirándulhat családjával és a kutyuskájával.
Telek
697 m2 a telek, nem is kicsi, nem is nagy. Ennek ellenére a túlzsúfoltság érzése nélkül fér el rajta az épület, a két autó számára épített fedett beálló elektromos autó töltővel, az elő- oldal- és hátsókert és minden, ami a tartós itt lakáshoz vagy nyaraláshoz kellhet. Rendben tartása nem jelenthet nagy terhet. Minden oldalról be van kerítve. 3 oldalról szomszédokkal határos, azonban a telekhatárokra ültetett növényzettől nem nagyon lehet látni őket és természetesen ők sem nagyon látnak ide be. A telek negyedik oldala a Török Bálint utcával határos. Az utca kis-forgalmú, az itt áthaladó autók zaja alig töri meg az itteni kertvárosias nyugalmat, csendet.
Közművek
Víz, villany, csatorna bevezetve.
Épület
Az épület 2018-ban kapta meg a használatbavételi engedélyt. Bár azóta 7 éve eltelt, mégis kifogástalan állapotban van, tulajdonosa alig-alig használta, szinte nem is laktak benne. Könnyűszerkezetes építési technológiával készült, mely napjainkban már Ausztriában és Németországban rendkívül népszerű, de más európai országokban is – pl. Finnországban – gyakori, keresettek ott az ilyen típusú lakóházak.
Belépve a házba az első érzésem az, hogy nagyon jó a klímája. Bár már vége van a nyárnak, ezen a hétvégén még egy kicsit visszatért, 29 °C van kint, ma sokan még a Balatonban is fürdenek. Itt bent azonban a hőség egyáltalán nem érzékelhető, köszönhetően a jó hőszigetelésnek, ami jellegzetessége a könnyűszerkezetes házaknak. A másik dolog, ami feltűnik, hogy ugyan néha látok az ablakból az utcán autót elhaladni, a zaját egyáltalán nem hallom.
Igen, ez egy jó klímájú, jó hangulatú, jól élhető ház, egyszerűen jó érzés itt lenni.
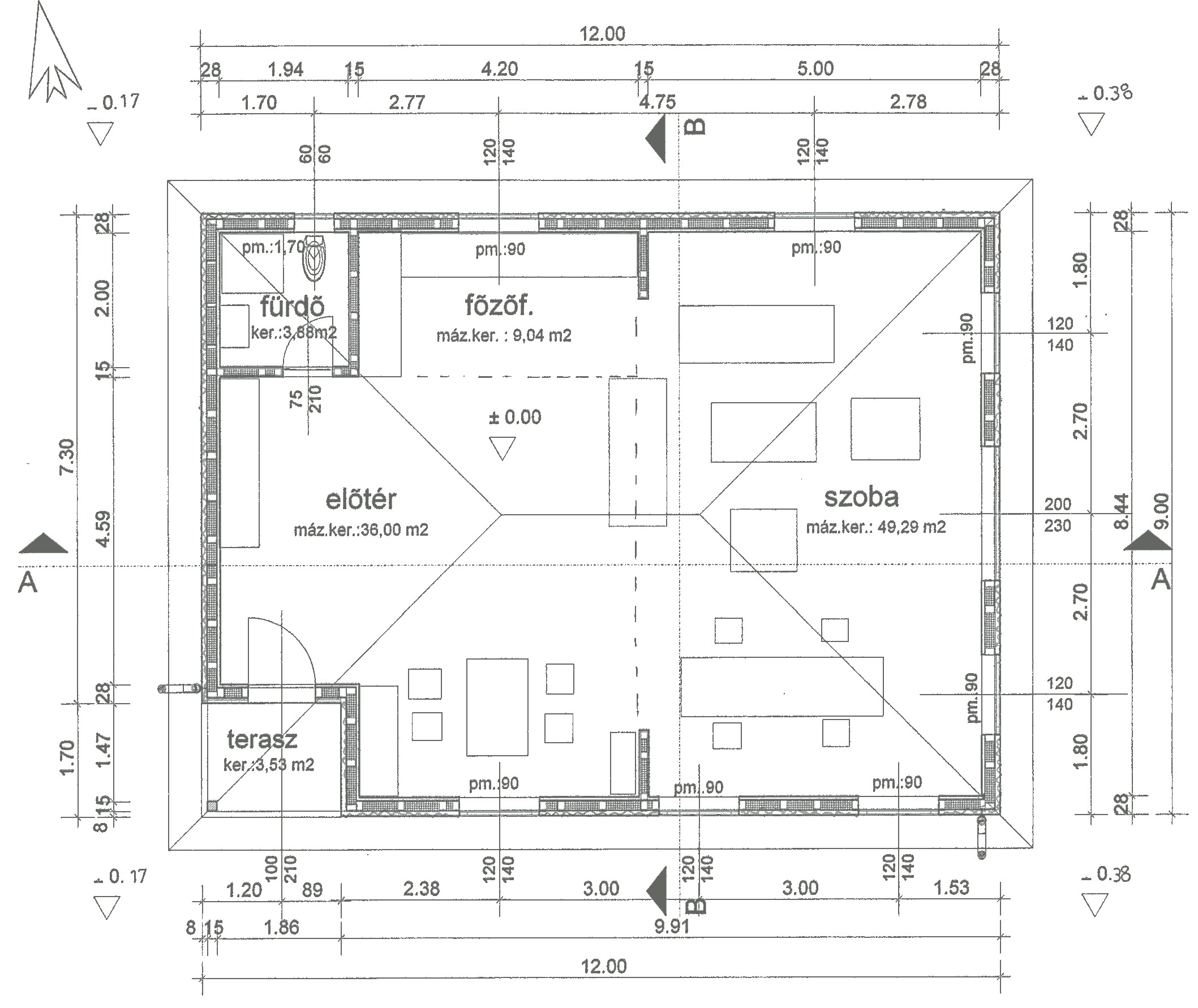
A lakóterület 100 m2, mindez egy szinten, ez különösen előnyös, nem kell emeletre fel és le járkálni.
Az egy légtérben megvalósított ház 5 funkcionális részre bontható.
1. A bejárati teraszról (3,5 m2) az Előtérbe lépek be, mely a szokásos előszobai funkciót valósítja meg.
2. Az előtérből közvetlenül nyílik a szépen kialakított és ízléses zuhanyzófülkés Fürdőszoba (3,9 m2)
3. Tőle jobbra található a Főzőfülke (9 m2)
4. Óriási térben áll a Nappali
5. És maradt bőséges hely a Háló saroknak / Dolgozó és Kondi térnek is.
A belső terek jelenlegi elrendezése természetesen a tulajdonos igényei szerint lett kialakítva. Az nyilván nagyon valószínű, hogy az új tulajdonosnak más szempontjai lesznek, ezért másféle elrendezést és belső válaszfalakat szeretne. Az épület ebből a szempontból is rugalmas, az új elképzelések viszonylag kis munkával és költséggel megvalósíthatók.
Miért érdemes megvásárolnia?
1. Tartós itt lakásra
Ha fontolgatja, hogy életmódot vált, ha már elege van a nagyváros nyűgjeiből, elege van a reggeli és esti dugókból, elege van a rossz levegőből, elege van a tömegből a túlzsúfoltságból, akkor ez egy remek lehetőség a változtatásra. Ide költözhet, távol a világ zajától itt nyugalomra találhat.
2. Nyaralónak
Hétvégéket, hosszú hétvégéket is itt tudja tölteni. A nyári hónapokban pedig, ahogy szabad ideje engedi, családjával itt is élhet.
Ha vágyik a Balaton közelségére, de távol szeretne lenni a világ zajától, akkor itt remekül fogja érezni magát.
3. Kiadó nyaralónak, albérletnek
A szezonban, de még a szezonon kívül is sokak számára keresettek az ilyen típusú ingatlanok. A rendkívüli mértékben megnövekedett belföldi turizmus által generált igények kielégítésével ez a ház jelentős bevételhez juttathatja.
4. Befektetésnek
Mai bizonytalan világunkban, a koronavírus járvány, a háború, az energia válság és a magas infláció által keltett aggodalmak miatt sokak fejében megfogalmazódik a gondolat: “Hol lehet biztonságban a pénzem?” A válasz lehet: pl. ingatlanban. Pl. egy balatoni ingatlanban.
Kedves potenciális Vevő! Ide azonnal be tud költözni! Ne habozzon, hívjon!

Balatonalmádi nagy ütemben fejlődő, forgalmas üdülőváros Veszprém vármegyében, a Balaton északkeleti öble közelében, az Öreg-hegynek a tóra leereszkedő lejtőjén. Fejlődésében nagy szerepe van a közeli megyeszékhelynek, Veszprémnek. Székhelye a Balatonalmádi járásnak. A Balaton-északi partjának egyik legnépszerűbb turisztikai célpontja. A város népessége az utóbbi években indult meg rohamos növekedésnek. 2021-re már átlépte a 10000 főt. Nyaranta rengeteg izgalmas programot kínál az ide látogatók számára.
Balatonalmádi része Vörösberény (1971 óta), Budatava és Káptalanfüred is.
Részletek
Updated on december 4, 2025 at 11:26 de.-
Ár 129.000.000 Ft
-
Lakóterület 100 m²
-
Telekterület 697 m²
-
Szoba 1
-
Fürdőszoba 1
-
Építés/Felújítás éve 2018
-
Ingatlan típusa Ház
-
Ingatlan státusza Eladó
-
Cím: Török Bálint utca 4.
-
Város: Balatonalmádi
-
Megye: Veszprém vármegye
-
Irányítószám: 8220
-
Városrész: Vörösberény
-
Megye: Magyarország